Helaas, dit pand is verkocht

1501 Buizingen

Omschrijving

Driegevel woning met grote tuin

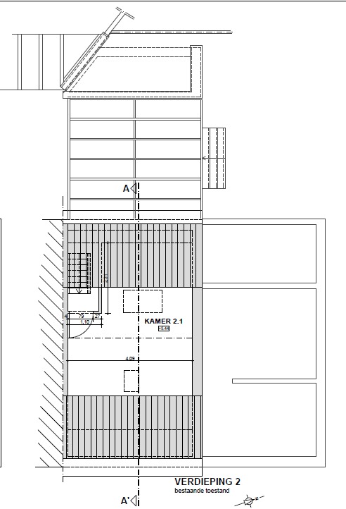
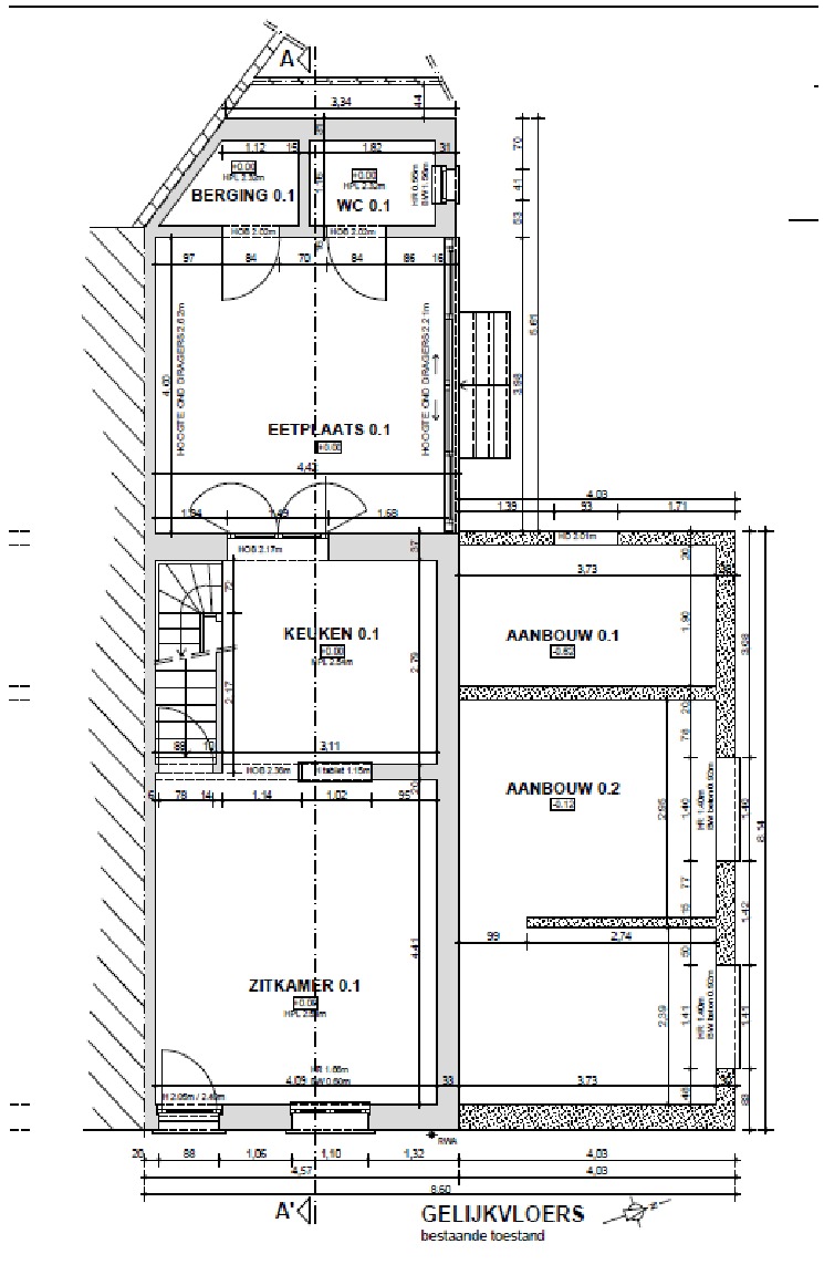
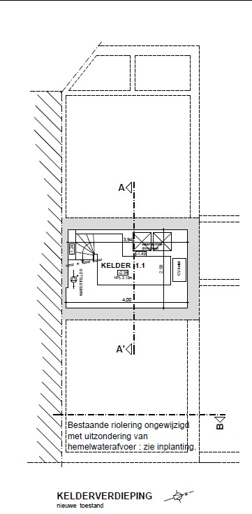
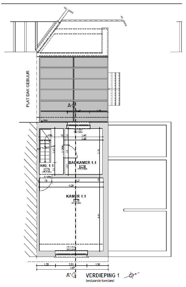
Grotendeels gerenoveerde half open bebouwing met grote tuin op een grond van 6 are 20 ca. Indeling: op het gelijkvloers: leefruimte (18,5 m²), keuken met toestellen (oven, kookplaat, dampkap en frigo), eetgedeelte in nieuwe veranda (16,5 m²) met aangrenzend terras (35 m²), apart toilet en berging (2,2 m²); op de eerste verdieping: nachthal, grote slaapkamer (18 m²), badkamer met bad/douche, wastafel en toilet; op de tweede verdieping: zolderkamer (11 m²) voorzien van twee dakramen met verduistering en vliegenramen. De woning is deels onderkelderd, met voorzieningen voor wasmachine en droogkast. De woning is volledig uitgerust met nieuwe buitendeuren en draai- en kipramen met geluidswerend glas en vliegenramen. Verwarming op gas met een hoogrendements- en combiketel. Volledig vernieuwde elektrische installatie. Aanbouw in ruwbouwfase met de mogelijkheid tot het vergroten van de leefruimte of het creëren van een extra slaapkamer en bureauruimte. Vergunning voor het isoleren (bevorderend voor de EPC-waarde) en afwerken van de buitengevel. Plannen en offertes beschikbaar. De werken aan de aanbouw zijn reeds vergund. Extra troef: klein beschrijf mogelijk!


Niet gevonden wat u zocht? Schrijf u dan vrijblijvend in op onze nieuwsbrief en blijf op de hoogte van ons recentste aanbod.
Schrijf u in Contacteer ons vrijblijvend!
U gebruikt een verouderde browser. Upgrade nu naar een moderne browser om ten volle gebruik te kunnen maken van alle functies van onze site:
Chrome |  FireFox |  Opera |  Safari |  Microsoft Edge
Terug naar boven
Sluit menu Woonkantoor