Pausleenstraat 17, 1540 Pajottegem
Vraagprijs: € 375.000

Omschrijving

Ruime casco woning

Zeer ruime en rustige gelegen casco woning te koop.

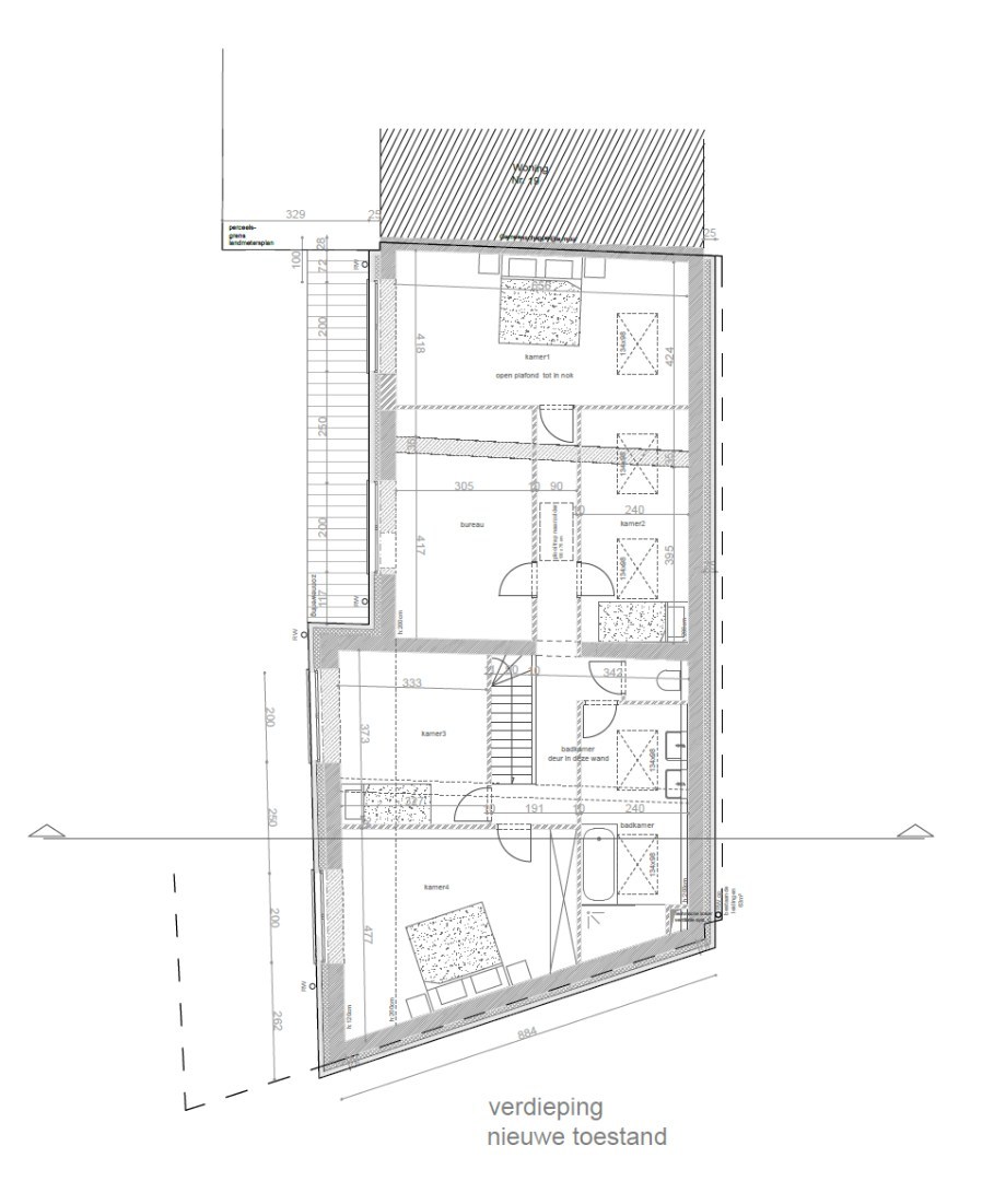
Indeling voorzien volgen plan: gelijkvloers (141 m²): inkomhal, ruime woonkamer met open keuken (58 m²), bering, toilet en garage; verdieping (141 m²): nachthal, 5 slaapkamers, toilet en badkamer; dakverdieping (70m²): zolderruimte. Deze indeling kan nog gewijzigd worden.

Dit pand is gelegen in een rustige buurt en heeft een mooie tuin.


Algemeen

Adres:Pausleenstraat 17
Pajottegem
Referentie:RS/0014/TK/02/2026
Vraagprijs:€ 375.000/totaal
Type:Woning
Beschikbaar vanaf:Onmiddellijk
Perceeloppervlakte:703 m²
Type constructie:Traditioneel
Renovatiejaar:2025
Bouwlagen:2

Indeling

Slaapkamers:5
Badkamers:1
WC:2
Woonkamer:Ja
Keuken:Ja
Terras:Ja
Tuin:Ja
Tuin kwaliteit:Normaal
Garage:1

Comfort

Treinstation:Ja
Bushalte:Ja
Winkel:Ja
School:Ja
Kinderopvang:Ja
Bank:Ja
Ontspanning:Ja
Restaurant:Ja
Raamwerk:Aluminium
Dak:Lessenaarsdak
Gevel:Plakwerk
Beglazing:Hoogrendementsglas

Kadastrale gegevens

Niet geïndexeerd K.I.:€ 364
Kadastrale benaming:huis
Kadastrale Nummers:G 164 L P0000
Kadastrale Oppervlakte:703 m²

Informatieplicht

Stedenbouwkundige vergunning:Ja
Voorkooprecht:Neen
Verkavelingsvergunning van toepassing:Neen
Stedenbouwkundige bestemming:Woongebied met landelijk karakter
Dagvaarding en herstelvordering:Geen rechterlijke herstelmaatregel of bestuurlijke maatregel opgelegd
Overstromingsgevoelig:Geen overstromingsgevoelig gebied
Overstromingsgebied:Geen afgebakende zones
Overstromingskans perceel (P-score):B
Overstromingskans gebouw (G-score):B
Erfgoed:Geen beschermd erfgoed
Ruimtelijke ordening: In aanvraag

Ligging

Neem vrijblijvend contact met ons op!

Wens je meer informatie of wil je een eigendom bezoeken?
Contacteer ons dan vrijblijvend voor meer informatie en/of om een afspraak tot bezoek in te plannen. 
Wanneer wij je aanvraag goed ontvangen hebben, nemen we zo snel als mogelijk contact met je op! 


U moet akkoord gaan met het privacybeleid van deze website
* Verplicht in te vullen
Niet gevonden wat u zocht? Schrijf u dan vrijblijvend in op onze nieuwsbrief en blijf op de hoogte van ons recentste aanbod.
Schrijf u in Contacteer ons vrijblijvend!
U gebruikt een verouderde browser. Upgrade nu naar een moderne browser om ten volle gebruik te kunnen maken van alle functies van onze site:
Chrome |  FireFox |  Opera |  Safari |  Microsoft Edge
Terug naar boven
Sluit menu Woonkantoor